Stationsplein
Aan het Stationsplein zijn we gestart met de transformatie van voormalige bedrijfsruimtes naar zes gloednieuwe woningen. Veenvesters staat voor de opgave om meer woningen te creëren. Tegelijkertijd bleek het verhuren van de commerciële ruimtes in gebouw De Geerhof steeds lastiger. Daarom hebben we onderzocht of deze ruimtes op de begane grond geschikt zijn om om te vormen tot woningen.
Uit dit onderzoek blijkt dat dit een passende en haalbare oplossing is. Ook de gemeente heeft inmiddels ingestemd. De omgevingsvergunning is positief afgerond, wat betekent dat we nu officieel kunnen starten met de werkzaamheden. En dat hebben we deze week dan ook gedaan.
Wat komt er?
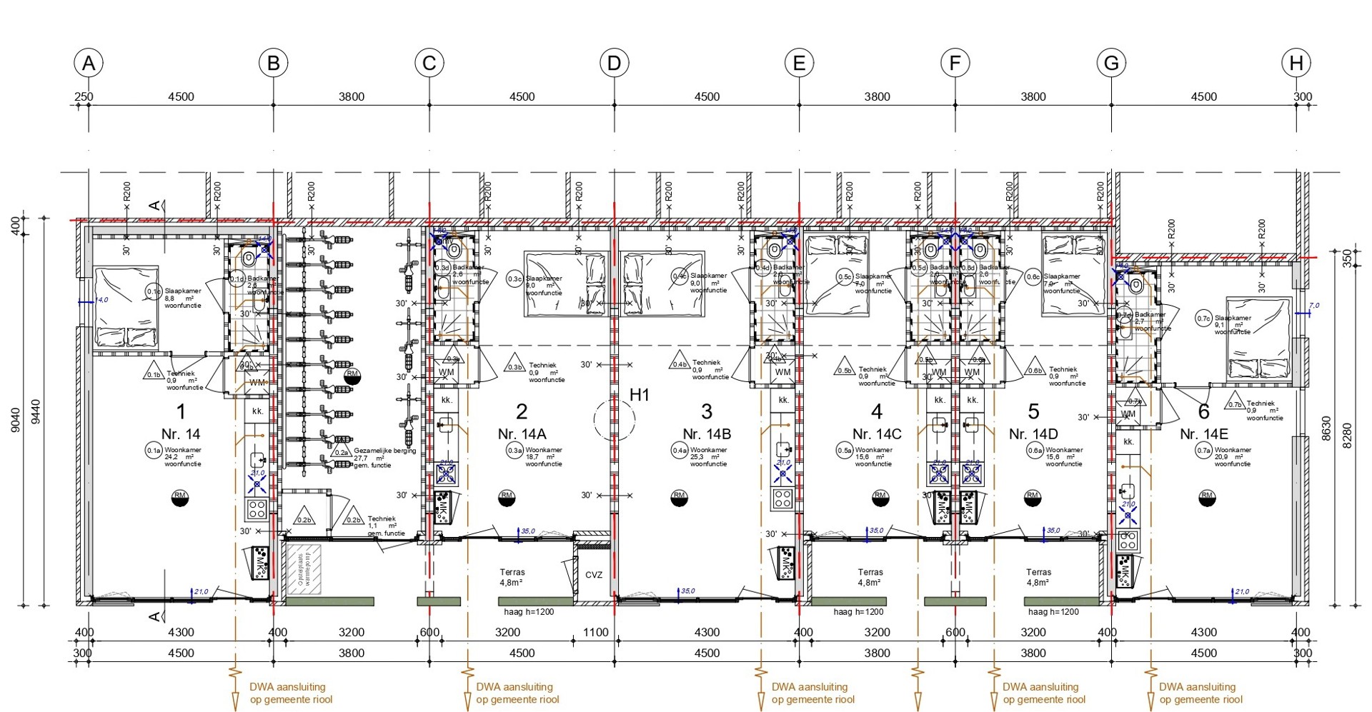
Er komen zes appartementen van 26 tot 36 m²
- 4 studio’s
- 2 tweekamerappartementen
De woningen zijn met name geschikt voor alleenstaanden.


De bovenstaande beelden zijn een impressie. Het uiteindelijke plan kan afwijken.